



ESPACE COUTURES SAINT-GERVAIS
Environnement
Espace bénéficiant d’une situation exceptionnelle au cœur du Haut-Marais, le long de l’Hôtel Salé (musée Picasso), dans une rue prisée des Fashion Week, entre les rues Vieille du Temple, Turenne et Thorigny.
Cet espace de caractère d’une superficie d’environ 100 m² est une adresse d’exception efficace pour accompagner un large panel d’événements.
Showrooms, Pop-Up Stores, boutiques éphémères, lancements de produits et marques, shootings, films, ventes privées, bureaux, réceptions, conférences, signatures, séminaires, expositions...
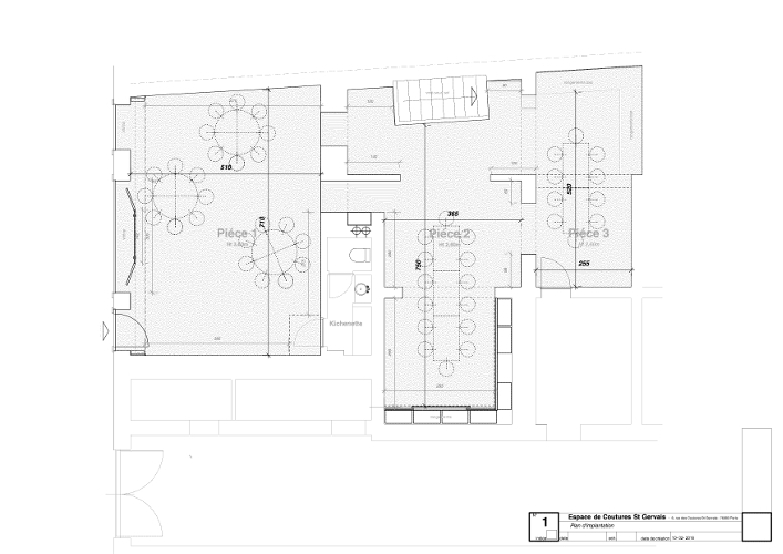
Local
- Une belle façade avec vitrines.
- Un accès direct sur la rue.
- Intérieur au sol de ciment gris et aux murs blancs.
- Cimaises sur tous les murs.
- Sur la rue, une grande salle de 38 m² avec belle hauteur sous plafond de 3,60 m ornée de poutres apparentes du 17e siècle. Eclairage modulable monté sur chemin aluminium.
- Sur l’arrière, deux salles de 32 m² et 17 m², d’une hauteur de 2,60 m. Eclairage vers les murs par réglettes fluos équipées de déflecteurs laqués blancs.
- Kitchenette et toilettes.
- 20 m² de stockage en sous sol.
- Livraison facile depuis la rue.
- Possibilité de louer une place de parking à 50 m (auto+moto)
- Rideau de fer en façade
- Wifi
- Alarme